- 詳細介紹
屋主故事
用心生活的人,總不會被生活辜負。為了找到可以看到整片湖景的房子,女主人@邱老師拿著衛星地圖把沿湖的房子都找了一遍。用她的話說,就是“找到理想‘家’的模樣,意義在于為自己與家人創造幸福感。”
小學教育事業賦予了她別有意義的生活方式,工作上的井井有條,被孩子們浸染的靈活變通的處事原則,還有獨特而別開生面的審美……
這些都可以從她的家中窺見一二,例如堅定明確的flag——「客廳一分鐘就能收拾好」,又如承載著8個功能區的客廳——休閑、玩耍、親子陪伴模式隨意切換,或如餐廳炸裂的星球燈、隨時變身影院的主次臥室。只能說,邱老師的家是三代同堂理想居的典范!
房屋信息:
戶型:三居室
使用面積:130㎡
風格:北歐風
常住人口:5人
花費:21w
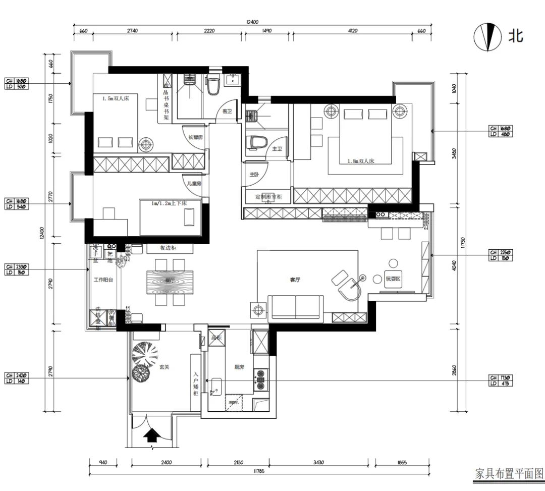
戶型圖
空間方正,四面采光,使用面積足夠,邱老師的要求是“連貫的空間關系,互動的場景,流暢的動線和實用的儲物。”根據原始戶型,再結合一家5口人的平時生活習慣,很快就確定了方案:
1. 客廳原有電視墻打掉,往主臥的方向移一個柜子的厚度,做嵌入式設計,大大提高了客廳的收納,留下鏤空部分擺放鋼琴;
2. 客廳陽臺打通做書房,餐廳陽臺打通做生活陽臺;
3. 客廳擺放雙人小沙發搭配開放式收納柜,讓公區增加收納空間;
4. 主臥的墻面移動后,門洞也往左移,衛生間做干濕分離,干區和整面墻的柜子設計在一個墻面,達到嵌入式的效果;
5. 兒童房和老人房中間的隔墻拆除掉,做錯開式的嵌入衣柜設計,一分為二兩邊使用。
玄關
歸家的儀式感,就是這個開闊的玄關門廳開始的。作為入戶的緩沖,極大地緩解了一望到底的尷尬。
打破常規的定制,以玻璃窗、懸浮柜、留白等更為鮮活的設計充分契合了日常需求,實現歡快而飽滿的動線,目之所及輕簡而具有生活感。
入戶正對面的墻壁上邱老師放了自制的全家福,上方配了照畫壁燈,獨一無二的裝飾,一進門就有回家的溫暖。
鞋柜靠近室內門洞的地方定制了全身鏡框的超薄柜,出門照鏡子很方便,里面可以存放各種雜物,更重要的還是一個電箱擋板。
客廳
整個公共空間做了一體化設計,客餐廳、玩耍區、工作區、生活陽臺等功能區域,都處于同一個視線范圍內,開敞明亮、簡潔清新。
以白+原木+黑色等中性色彩為背景主調,引入陽光,使得原本素雅的居住氛圍,多了些許明趣、活躍的格調。
拆除主臥的墻面,根據陽臺處的承重墻尺寸做成了嵌入式柜子。
底部留空,選購合適尺寸的帶輪子收納盒,把客廳弄得再亂,也可以一分鐘收拾好,還能培養寶寶自己收納玩具的好習慣。
左側設計成木色開放格,當書架用,可以擺放寶寶的繪本等。
裝了投影,省去擺放電視的空間。
根據鋼琴的尺寸,預留出空間擺放鋼琴,這樣一來,琴房就有了。
通鋪的仿木紋磚,細膩的紋理和顏色,看起來很溫馨,中間沒有做任何的劃分,空間看起來更具延伸性。
與傳統觀念中的成套、大氣相反,邱老師選擇了分散式擺放家具。沒有放茶幾也沒有太多凳子,一個雙人真皮小沙發,滿足偶爾就坐需求。
客廳的中間鋪上一塊地毯,方便孩子玩耍。偶爾搬出小朋友的滑梯和爬爬架,在家也能給寶寶“放電”。
書房/玩耍區
陽臺的位置打通后,設計成了窗景書房,它與客廳、玩耍區連在一起,空氣、陽光都可以相互交織。
書桌是圍繞著承重墻定制的,和電視墻的柜子連接在一起,視覺上很統一,空間也沒有絲毫的浪費。
工作累了側目遠眺窗外,既放松又治愈。
白色紗簾輕啟,早晨和傍晚的陽光都能照射進來,低飽和度色調包裹下,將輕緩的氣息釋放而出。
搖椅與邊幾靠墻擺放,與掛毯色調上互為補充,柔和的光線下,保有簡約與輕快的視感維度。
餐廳
突破循規蹈矩的秩序,橘黃色專屬的活躍調性、炸裂的星球燈,給予了餐廳張揚的美。
墻面做了壁掛式的餐邊柜,輕體量的餐桌椅放在中間,可以隨意地挪動,完全不會影響通行。
背景墻上掛滿了藝術氣息濃郁的框畫,消弭了白墻容易帶來的無趣感。
餐廳陽臺設計成生活陽臺,利用采光充足的特點,輕松解決洗晾一體的需求。不得不說,四面采光的房子真棒!
廚房
廚房與餐廳以玻璃平移門為隔斷,玻璃的材質讓餐廚廳的視線得以穿透。充盈的陽光與素美的色彩是最好的情緒媒介。
原來是L型廚房,@邱老師舍棄過道空間,改成經典的U型。
這個看一眼就讓人心動的北歐風原木小清新廚房,不僅輕松實現了日常收納,還能凸顯溫暖和舒適的視覺效果,帶來一種回歸大自然的清新感受~
主臥
主臥的L型大飄窗,將天空和江景凝成了一幅畫!
陽光就是最好的濾鏡,鋪上軟墊,坐在飄窗臺,每天都能欣賞日出、日落,隨便一幀畫面,都是讓人一眼淪陷的那種美……
床尾做嵌入式衣柜,超大的容量讓邱老師十分滿足,雖沒有獨立衣帽間,但是卻擁有了一個坐擁夜景的超氛圍感影院級臥室。
孩子在客廳玩鬧時,邱老師需要一個安靜的工作環境備課,床側定制安裝在墻壁上的書桌和擱板輕巧簡約,收納、展示、梳妝臺的功能也有了,可謂一舉多得。
主衛
主衛洗手臺獨立于衛生間之外,與衣柜相接,規避了主衛面積小的缺陷。
兒童房
兒童房適當留白,隨著孩子慢慢長大,他會有自己的喜好和想法,所以目前的軟裝都很簡單。
床尾是小朋友喜歡的玩耍區,有可愛的恐龍小椅子,鋪設地毯讓孩子可以無拘無束地在地上玩耍。
衣柜的設計做了四六分,下面一米的高度,等小朋友到三四歲的時候,就可以自己打開柜子,培養孩子自主選擇搭配的習慣。
長輩房
沉穩的淺咖色背景墻,搭配暖橘大床,無刻意修飾的簡潔設計正是長輩所摯愛的溫暖居室。
高飽和度的色彩點亮了純凈的生活,在靜謐的空間格調里映襯著豐盈的氣質。
兩位老人的衣服不是很多,衣柜做嵌入式,內部結構全都是掛衣區。投影儀放在床頭柜,直接投床尾的大白墻,晚上累了可以舒舒服服的靠著看電視。
公衛
公衛洗手臺在衛生間之內,淋浴房以一款簡單的鋼化玻璃做隔斷,視覺上也會更開闊些。
為了方便放寶寶的洗澡盆和讓機器人出入,淋浴房沒有設置門檻,但只要保持排水暢通,適當找好坡度,就不用擔心洗澡的時候水會從底部溢出。
